賃貸物件案内
| 詳細情報 | ||||
|---|---|---|---|---|
| 所在地 | 奄美市名瀬久里町19-18 | |||
| 交通 | 奄美小学校裏門より約130m | |||
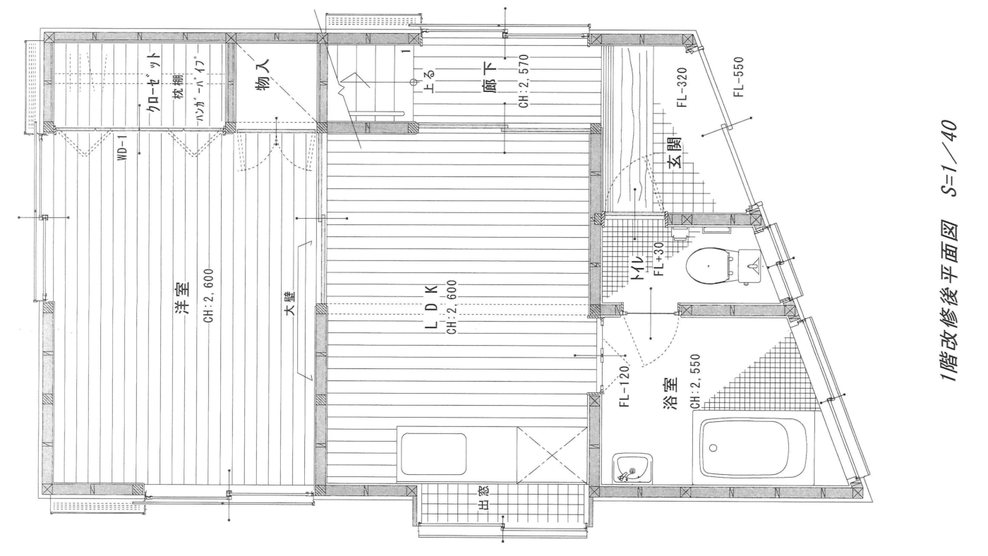
| 間取り | 3LDK | |||
| 賃貸条件 | 賃料 | ¥65,000 | ||
| 敷金 礼金 仲介手数料 | ¥130,000 ¥65,000 ¥71,500 |
|||
| 管理費・共益費 | - | |||
| 契約期間 | 2年 | |||
| 入居可能日 | 即時 | |||
| 建物 | 地勢 | 木造/平坦 | ||
| 規模 | 2階建 | |||
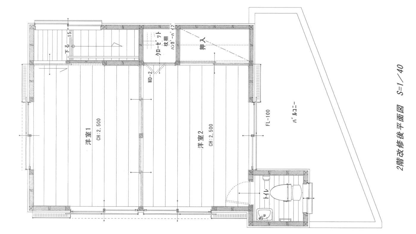
| 間取・内訳 | 1F: 洋間/1LDK/浴室/トイレ 2F: 洋間2室/トイレ/バルコニー |
|||
| 築年月 | 昭和62年8月 | |||
| 駐車場 | 1台あり 月額¥6,000別途 |
|||
| 物件ID | E2011 | |||
所在地













